集成灶安装方法详细介绍_沐鸣2集成灶

集成灶安装方法详细介绍

返回列表来源:沐鸣2 发布日期:2019-12-5 17:28:21 浏览:219

随着人们生活品质的不断提升,越来越多的人开始关注身体健康方面的问题,厨房用品也开始渐渐往着低油烟健康厨房的方向发展,集成灶就是近两年来大火的厨房用品之一,因为有着超高吸油烟效率以及低占用空间的优势,收到了消费者的一致好评。但许多消费者对于集成灶这样的新兴产品安装产生了大量的疑问,对此,集成灶十大品牌沐鸣2集成灶就来给大家讲解一下关于集成灶安装方面的知识:

预先确定好集成灶的安装位置及尺寸

1. 集成灶安装需要尽量避开一些地方,防止出现吸油烟效果不佳的情况;集成灶安装位置避开窗户的上风口,如果选择窗户旁边且是风向口,若打开窗户使用则会影响油烟吸净率,如果窗口正是风向口,建议避开窗户位置;

沐鸣2D6Z集成灶安装场景

2. 集成灶在定位时确定排烟方向、燃气表、燃气管位置,防止燃气表、燃气管影响排烟管的摆放;集成灶排烟方向与烟道所在墙壁距离大于30公分,不宜超过2米;

3. 集成灶左右两侧尽量不要设计拉篮,若设计拉篮,请提前确定拉篮深度,防止拉篮阻挡集成灶电源插线、排烟管、燃气管道放置;

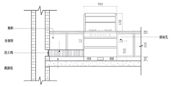
4. 集成灶左右两侧需要接通燃气、连接电源、排烟管,所以对于集成灶需要接线、排烟侧橱柜进行开孔,燃气借口、电源线接口开方孔、圆孔均可,开孔时孔径宜大不宜小,方便管路、电路连接和插拔,排烟管开孔为方形,开孔原则仍是宜大不宜小,方便烟管与机器连接、螺丝固定;

5. 安装孔位距离左右墙面的距离不得小于300mm,灶具工作台面与上方橱柜的距离不得小于750mm。带有电蒸箱的机型,机器前方需留有500mm宽的空间,以便电蒸箱门组件的完全打开。为不影响排烟效果,外排风管的长度不应大于2米,≤90度的急转弯不能超过2个。

集成灶安装示范图

集成灶安装示范图(来源于网络)

预留集成灶插座

6.在预留集成灶电源插座位置时,请提前确认集成灶所使用的插座,目前丰向标集成灶F2蒸箱款、F70蒸箱款、一电一气款使用的是16A电源线,所以在走线时请用4平方线,接16A电源插座;其余款型集成灶使用10A电源插座即可。插座位置选择在集成灶左右两侧橱柜内即可,一般距离集成灶保持在50公分以内。

确定橱柜预留尺寸

7. 每款集成灶的长度有所不同,确定好机型之后,选择预留相应的机型长度尺寸,在预留尺寸时,在集成灶长度的基础上加5mm,确保集成灶放进去,多出来的长度安装完成后可打玻璃胶进行衔接封闭;

集成灶安装示范图

集成灶安装示范图(来源于网络)

确定公共烟道或墙壁开孔位置

8. 墙壁开孔位置确定时根据机器放置位置确定,一般距离地面12公分以上,保持烟管从机器一侧连接出来是垂直状态,开孔孔径为18cm,目前市面上开孔器一般为18cm。

以上就是关于集成灶安装的详细讲解,如果您家中正好需要安装集成灶,可以多多关注,与安装师傅多多沟通,才能以后的厨房生活更加健康安全,沐鸣2集成灶,集成灶十大品牌之一,致力于为客户打造“快乐的厨房生活”,如果您有集成灶方面的问题,欢迎来咨询沐鸣2集成灶。

相关资讯《使用集成灶应该注意以下问题》

本文标签:集成灶 集成灶安装 集成灶安装方法 集成灶安装步骤 集成灶尺寸 上一篇:集成灶应该怎么清洗 下一篇:集成灶使用三年后的感想